On Lake Michigan, North Port, Michigan

Interior of Lake Michigan House

House for a 50 x 150 lot. Los Angles, California

Very small house 740 SF  Two bedroom two bath.  Wood stove and passive solar heat.

Proposed Addition to a saltbox cape, Southport, Maine 2003

Original drawing plan, elevation, & perspective color pencil rendering.

View from the pool into the Great Space.  Suspended circular glass treads over the pool.    Rendering by Razin Khan. 

Bristol House Great Space, 

House for Baja, Mexico

House for Robert & Duffy Carabia, Harrison, Maine 2016

House in Round Pond, Maine

Florida Screened Atrium House

West Virginia Project

West Virginia, Camp 1 of 12 for rental.  Original sketch above with CAD rendering below. 

Projects designed but not yet built

James Walter Schildroth, Architect

House on Westport Island, Maine

Major redesign of the existing house.  Removal of the existing roof and top floor and replace with new top floor and roof deck terrace to take advantage of the open ocean view.  The circular arc to the main floor entry deck connects the new garage to the house and continues across the ocean side.

Desert Spheral Tent, Taliesin West, Scottsdale, Arizona

View from the Great Center Space looking toward the swimming pool.  Note the water flows under the glass wall from inside to outside.   Also note the circular suspended glass stair treads that curve above the pool water.  The center-pivot entry door is frame-less glass and is on the right.  

House for Myra Zeigler and family Cedar Key, Florida 2015

West Virginia Central Lodge and Guest House  2004

Existing saultbox cape.

Minneapolis Organic 2001

Three bedroom two bath upper house & three lower rental units, two swimming pools with waterfall feature connecting the pools.  View east of the Sea of Cortez.

Baja, Mexico 2016

Proposed concept

House for Thomas & Danielle Ewing

St. George, Maine   2013

Maine lake house 2002

Transformation on the Ocean in Maine

House for the Southeast

View left shows metal tube frame without canvas covering.  Also the interior, with seat/bed, work desk on roof that caries in from outside, and fireplace.  

View from the street.  Carport entry roof.   Rendering by Razin Khan. 

Design projects 2020

New house, Bristol, Maine 2021

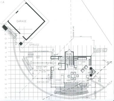
Main floor plan

Planning for this 60 acre property including the central lodge and a dozen rental Camps. Each camp design is a different expression of Organic Architecture.  Original designs by James Schildroth, Architect.  

Desert Dweller, Taliesin West, Scottsdale, Arizona

Color pencil rendering by James Schildroth 1960

Above:  Open air camp with screen.  Stone fireplace and full bath in rear enclosure. 

ORGANIC ARCHITECTURE

james@schildrotharchitect.com

Three bedroom three bath and Living, cooking and eating area.  All open to a large open air screened atrium open to the south and to a larger terrace.  Designed as a low cost solution to Florida living.

Existing house

Photo realistic rendering by K. Stein 2015

J A M E S   W A L T E R

S C H I L D R O T H